Описание
Банная печь Русь Профи 12 Л представлена на рынке более двадцати лет. Она гармонично соединяет вековые традиции русской бани и современные технологические решения. Модель ценится за простоту использования и экономичность, обеспечивая оптимальный микроклимат в парилках.
Завоевав статус «народной», печь отличается универсальностью и легко адаптируется к разным условиям эксплуатации. Это лидер по продажам — проверенное решение, которое заслужило доверие покупателей.
Модель обеспечивает умеренный нагрев парной, давая идеальный баланс тепла и влажности. Сочетание надёжности, удобства и доступной цены делает её одним из самых популярных предложений в ассортименте компании «Теплодар».
- Назначение. Создание оптимального микроклимата в парилке с мягким нагревом и сбалансированной влажностью.
- Компактность. Рациональная конструкция занимает минимум места, сохраняя эффективность прогрева.
- Экономичность. Возможность использования дров и древесных брикетов при низком расходе топлива.
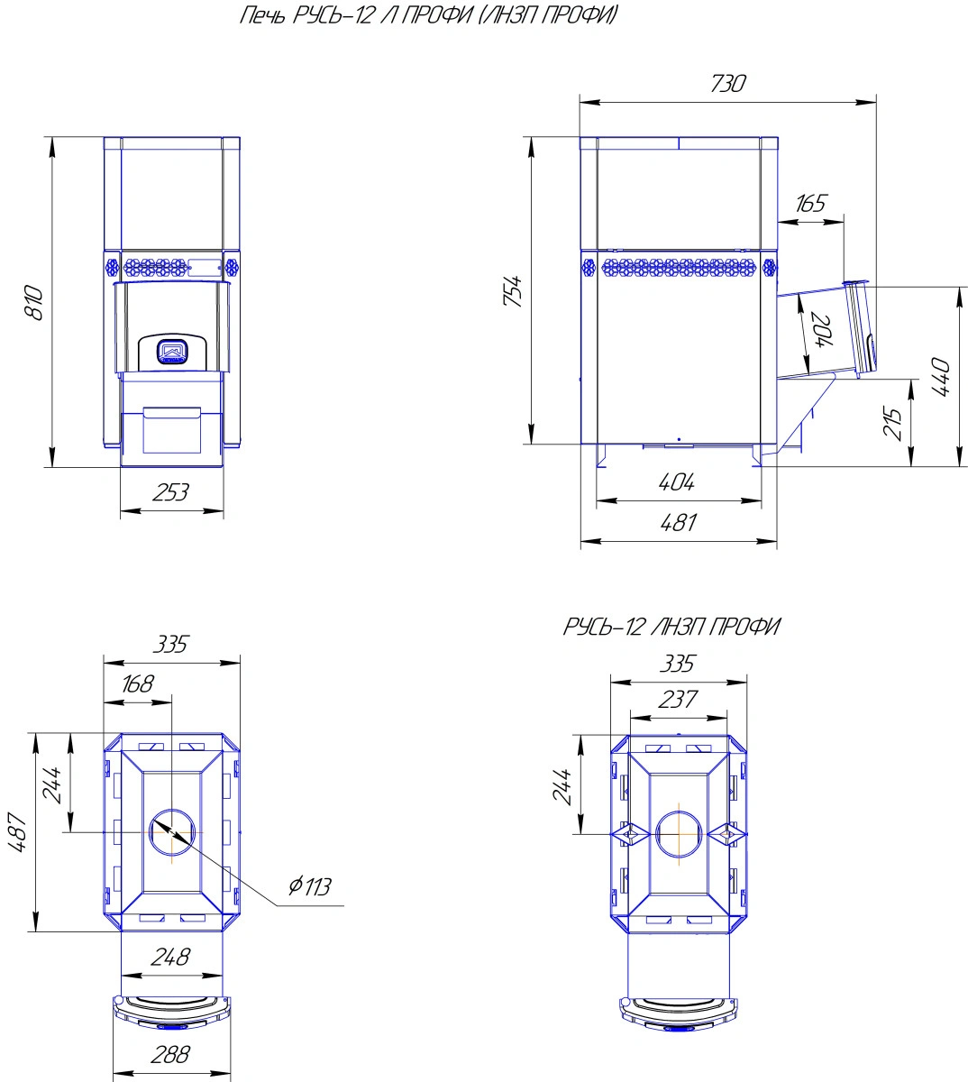
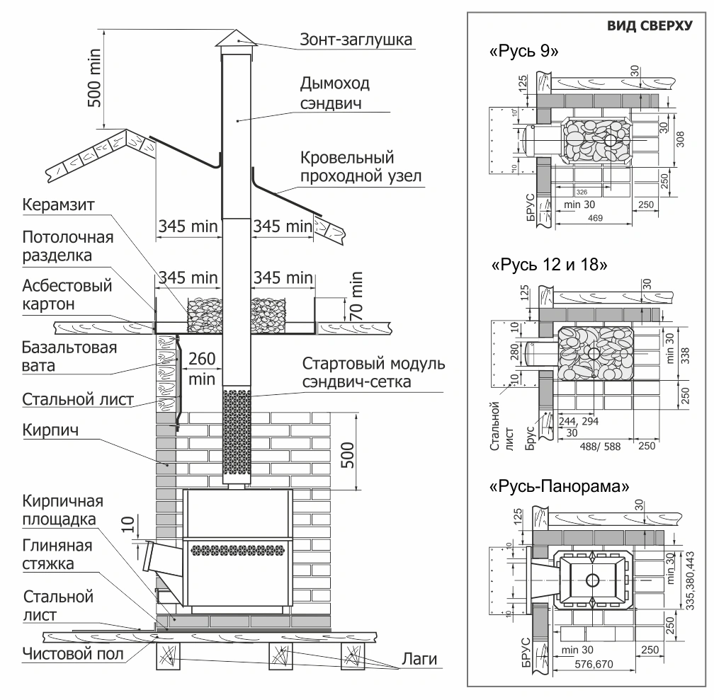
- Простота монтажа. Центральное расположение дымохода упрощает установку и обеспечивает эффективное отведение дыма.
- Совместимость. Подходит для разных типов парилок и условий эксплуатации.
- Удобство и простота в эксплуатации. Лёгкое управление микроклиматом и удобная дверца делают использование печи комфортным.
- Безопасность. Грамотно сконструированные нагревательные поверхности позволяют быстро и безопасно прогревать помещение до 90 °C.
- Доступность. Оптимальное соотношение цены и качества — проверенная печь по разумной стоимости.
- Долговечность. Корпус из нержавеющей стали и надёжная конструкция гарантируют длительный срок службы.
- Информативность. В комплект входит подробное руководство по эксплуатации, помогающее грамотно настроить и использовать печь.
- Печь — 1 шт.
- Дверка — 1 шт.
- Ось дверки — 1 шт.
- Ящик зольника — 1 шт.
- Чугунный колосник 100×300 — 1 шт.
- Руководство по эксплуатации — 1 шт.
- Упаковка — 1 шт.
Гарантия — 5 лет. В течение этого срока все проблемы, связанные с браком или конструктивными недостатками, устраняются бесплатно. Условия гарантии зафиксированы в гарантийном талоне, который поставляется с изделием.









Отзывы
Отзывов пока нет.