Описание
Печь для бани Русь-18 Л Профи — одна из самых популярных моделей компании «Теплодар». Серия представлена на рынке более двадцати лет и по праву завоевала статус «народной». В этой печи гармонично сочетаются вековые традиции русской бани и современные технологические решения.
Модель обеспечивает умеренный, но эффективный нагрев парной, создавая идеальный микроклимат для настоящих ценителей русского пара. Благодаря универсальности и простоте адаптации к различным условиям эксплуатации, печь подходит для самых разных парилок.
Сочетание продуманной конструкции, надёжных материалов и доступной цены сделало эту модель лидером продаж. Печь заслужила доверие покупателей и подтвердила свою сверхнадёжность многолетней успешной эксплуатацией.
- Назначение: создание оптимального микроклимата в парилке с мягким и равномерным нагревом.
- Компактность: рациональная конструкция занимает минимум пространства, эффективно используя каждый сантиметр.
- Экономичность: возможность использования дров и древесных брикетов в качестве топлива, а также эффективный теплообмен снижают расход ресурсов.
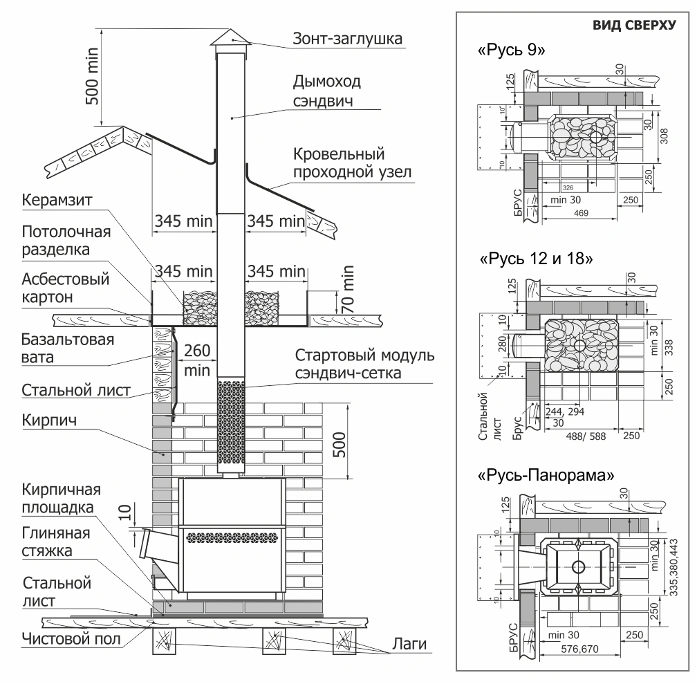
- Простота монтажа: центральное расположение дымохода упрощает установку и обеспечивает эффективное отведение дыма.
- Совместимость: подходит для различных типов парилок и легко адаптируется к разным условиям эксплуатации.
- Удобство и простота в эксплуатации: интуитивно понятное управление микроклиматом и удобная дверца делают использование печи максимально комфортным.
- Безопасность: продуманная конструкция и качественные материалы обеспечивают надёжную и безопасную работу.
- Доступность: оптимальное соотношение цены и качества делает печь доступной широкому кругу покупателей.
- Долговечность: корпус из нержавеющей стали и чугунный колосник гарантируют длительный срок службы.
- Информативность: в комплект входит подробное руководство по эксплуатации, помогающее быстро освоить все функции печи.
- Печь — 1 шт.
- Дверка — 1 шт.
- Ось дверки — 1 шт.
- Ящик зольника — 1 шт.
- Чугунный колосник 100×300 — 1 шт.
- Руководство по эксплуатации — 1 шт.
- Упаковка — 1 шт.
Гарантия: 5 лет. В течение этого срока все проблемы, связанные с браком или конструктивными недостатками, устраняются бесплатно (согласно гарантийному талону, входящему в комплект поставки).










Отзывы
Отзывов пока нет.