Описание
Твердотопливный котел Куппер Практик-16 В — экономичная линейка надёжных твердотопливных отопительных котлов, предназначенных для обогрева жилых домов и иных помещений площадью до 200 м². Модель отличается продуманной конструкцией, обеспечивающей эффективное и безопасное отопление при разумных затратах на топливо.
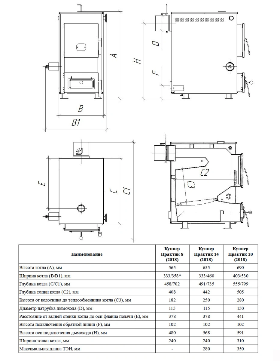
Котёл способен работать до 5 часов на одной закладке угля, что снижает частоту обслуживания и повышает комфорт эксплуатации. Устройство совместимо с различными типами систем отопления, позволяя интегрировать его как в новые, так и в уже существующие инженерные сети.
Благодаря компактным размерам котёл легко размещается в жилом помещении, не занимая много места. Обновлённая версия (1.1) получила ряд конструктивных улучшений, повышающих эффективность и удобство использования.
Основные преимущества
- Назначение: отопление жилых и иных помещений площадью до 200 м²
- Компактность: небольшие габариты позволяют устанавливать котёл непосредственно в жилом пространстве.
- Экономичность: длительное горение (до 5 часов на одной закладке угля) снижает расход топлива и частоту обслуживания.
- Простота монтажа: котёл легко интегрируется в систему отопления без сложных подготовительных работ.
- Совместимость: работает в закрытых и открытых системах отопления с принудительной циркуляцией, может дополнять газовые, жидкотопливные или электрические котлы.
- Удобство и простота в эксплуатации: интуитивно понятная регулировка, наличие термометра для контроля температуры теплоносителя.
- Безопасность: защитный кожух‑конвектор с конвекционными отверстиями предотвращает перегрев, чугунный колосник повышает надёжность конструкции.
- Доступность: базовая комплектация включает все необходимые аксессуары для начала работы.
- Долговечность: качественные материалы и продуманная конструкция обеспечивают длительный срок службы.
- Информативность: биметаллический термометр на фронтальной части котла позволяет оперативно отслеживать температуру теплоносителя.
В комплект модернизации входит
- Котёл — 1 шт.
- Винт регулировки подачи воздуха — 2 шт.
- Термометр биметаллический — 1 шт.
- Заглушка Ду 40 (G 1 1⁄2’’) — 1 шт.
- Заглушка Ду 20 (G 3⁄4’’) — 1 шт.
- Чугунная створка котла ЗТ‑2,1 — 1 шт.
- Плита универсальная П2‑7 — 1 шт.
- Ящик зольника — 1 шт.
- Шуровка — 1 шт.
- Кочерга — 1 шт.
- Дверца зольная — 1 шт.
- Дверца загрузочная — 1 шт.
- Шибер поворотный 115 мм — 1 шт.
- Руководство по эксплуатации — 1 шт.
- Упаковка котла — 1 шт.
Гарантия: 3 года. В течение гарантийного срока все проблемы, связанные с производственным браком или конструктивными недостатками, устраняются бесплатно (согласно гарантийному талону, входящему в комплект поставки).











Отзывы
Отзывов пока нет.